Craft Brewed Proposes Tap Room With Rooftop in the Nations

Craft Brewed Proposes Tap Room With Rooftop in the Nations

  • Robert Looper III
  • 01/27/22


Craft brewed is proposing an addition to the property fronting 51st Avenue in The Nations. The official address of the property is 5101 Illinois Avenue. A zoning appeal has been filed for consideration of the site characteristics which includes sidewalks, vehicle access, & green space. The site plan proposes the following modifications:



  • 6 foot vs. 10 foot sidewalks.
  • Maintain 4 foot planting area along sidewalks.
  • Green Infrastructure within ROW given site characteristics.
  • Upgrades to existing infrastructure.

What's Next

What's Next

What's Now

What's Next

The images above provide a graphic representation of the proposed modifications. The changes result in replacing a portion of the parking lot with usable green space, better access & pedestrian sight lines into the remaining parking lot, and adequately sized sidewalks.

What's Now

What's Next

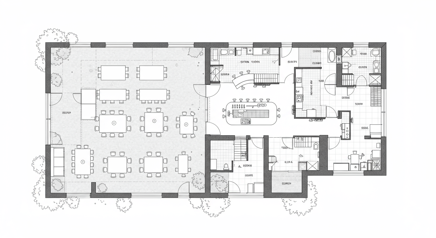
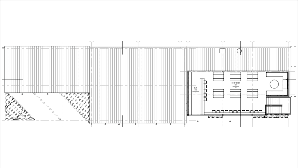
Designed by Powell Nashville, the new restaurant design is full of character and embraces a lot of the existing structure. The first level includes the taproom, bottle shop, and storage areas. Level 2 includes a covered rooftop bar with bar and common seating configurations.


Level 1


Level 2


The BZA hearing is set for the 2/17/22 agenda. Be sure to subscribe for more on this and other Developments In & Around Nashville!

Invest With Us

Get assistance in determining current property value, crafting a competitive offer, writing and negotiating a contract, and much more. Contact us today.

Follow Us